Electrical Engineering
Powering Grids. Securing Futures.
CANEIL’s Electrical Engineering group supports clients across utilities, industrial facilities, midstream energy, renewables, and large commercial infrastructure with practical, constructible power system and substation solutions. Our team brings extensive field-proven experience delivering projects from early feasibility through detailed design and closeout, prioritizing safety, reliability, maintainability, and clear coordination with all stakeholders. We support both greenfield developments and brownfield upgrades, tailoring the level of engineering to match project risk, schedule, and budget.

Feasibility Analysis and Equipment Specifications
Front-end engineering and options screening to define a fit-for-purpose scope, develop basis-of-design, and support informed decision-making. Deliverables may include high-level one-lines, preliminary layouts, equipment selections, and technical specifications suitable for budgeting and stakeholder alignment.

Power System Analysis
System analysis to validate performance, safety, and operability across a range of operating conditions. Typical studies include load flow, short-circuit and fault analysis, motor starting, dynamic/transient analysis (as required), and coordination inputs to support reliable system operation.

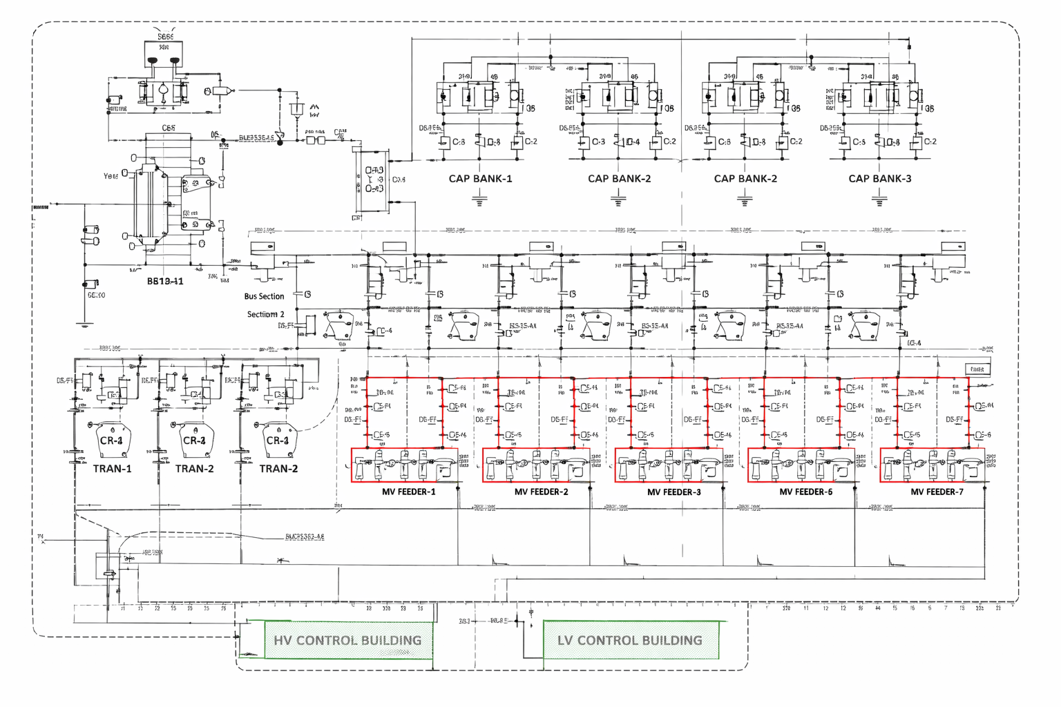
Substation Design
Development of complete substation design packages with a strong focus on constructability, safe work practices, and long-term maintainability. Support can include equipment arrangements, conductor/bus design, cable routing concepts, and integration with multidisciplinary requirements for efficient field execution.

Detailed Protection & Control Design
Protection and control engineering from concept through IFC deliverables, including relay philosophies, logic and interlocking intent, schematics, wiring and termination details, and panel/RTU integration concepts. We coordinate closely with owners, operators, and commissioning teams to ensure designs are clear, testable, and aligned with operating procedures.

Project Engineering & Project Management
End-to-end coordination to keep engineering, procurement, and field activities aligned. Support can include scope definition, scheduling, design reviews, risk tracking, interface management, and disciplined communication to drive timely decisions and predictable delivery.

Material Procurement & Construction Support
Engineering support through procurement and construction to reduce schedule risk and minimize field rework. Services may include RFQ technical support, vendor document review, responses to RFIs, and constructability clarifications during installation.

Commissioning & Energization Support
Assistance through pre-commissioning, commissioning, and energization activities, including test documentation support, punch-list resolution, field issue troubleshooting, and turnover packages to support a clean closeout.

Utility / ISO / Interconnection Support
Support for grid interconnections and utility coordination, including technical inputs, document packages, and interface alignment to streamline approvals and reduce rework.

Grounding, Lightning Protection & Safety Assessments
Grounding and bonding concepts, step-and-touch considerations, lightning protection intent, and safety-focused electrical assessments to support safe operation and maintain compliance expectations

Arc Flash, Coordination & Power Quality Support
Engineering inputs to support safer facilities and reliable operation, including arc flash study support, protection coordination considerations, and power quality evaluations as required.

SCADA, Communications & Metering Integration
Design support for substation communications and control integration—SCADA/RTU concepts, metering interfaces, and coordination of signal lists and I/O intent to support seamless commissioning.